招标通告

当前位置:首页  招标通告
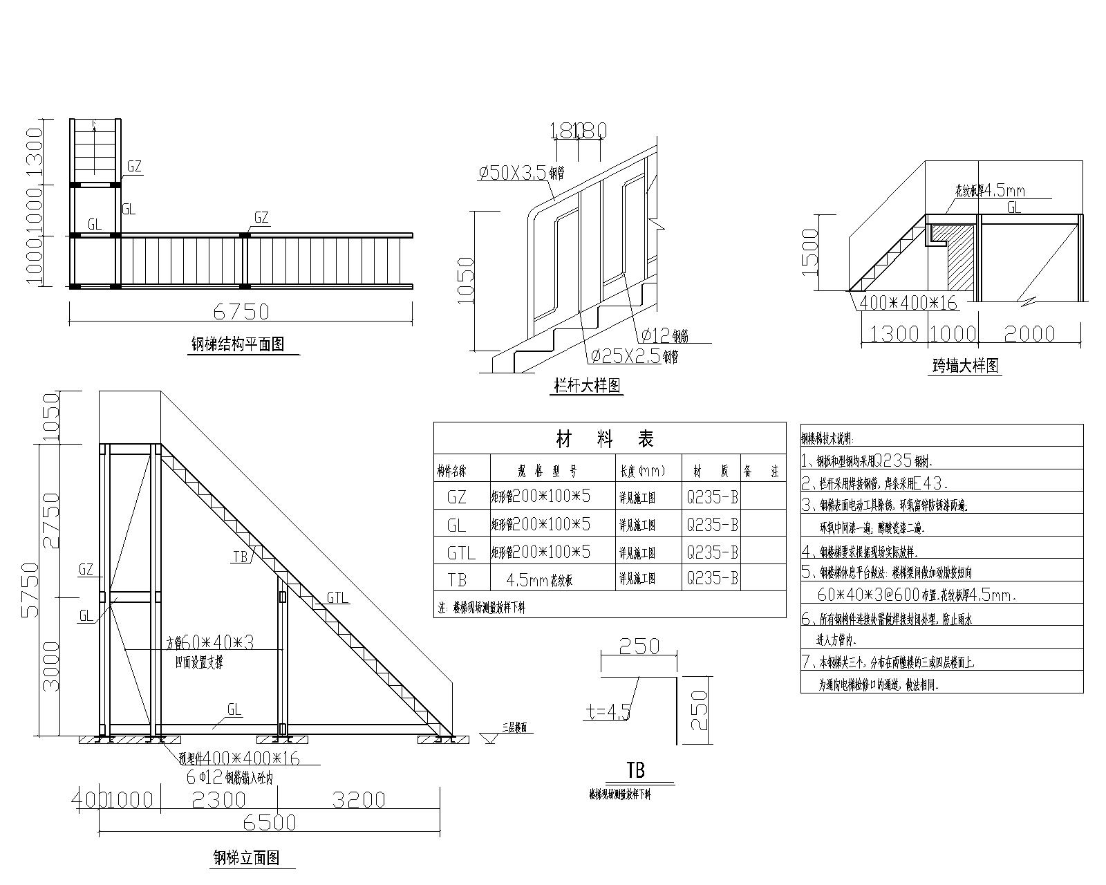
共享型实训基地钢梯制作与安装招标公告
发布日期:2017-06-12浏览次数:2319

一、招标编号:JJC/H-20170612-036

二、项目概况:

    1.项目地点:MK.COM内。

    2.招标范围:共享型实训基地钢梯制作与安装(详见招标文件)

三、投标人资质要求:

    1、具有独立法人资格、企业法人营业执照;

    2、有制作安装同样产品的业绩;

    3、投标单位应独立参与投标;

    4、具有良好的企业资信,近年无不良业绩,并自愿遵守招标须知的厂家;

 5、建筑工程二级及以上资质;

 6、详见招标文件。

四、资格审查方式及办法:

    1.本项目实行资格后审,招标人不予电话通知,资格条件审查在投标时进行。

    2.满足资格条件并进行投标工作的投标人应在2017年6月26 日17:00时前填写的“投标人报名表”以word格式发送至招标人jianyuanzhaobiao@163.com邮箱。

五、投标文件及有关费用:

    1.招标文件售价:本项目收取标书费200元,送达投标文件时现金缴纳,售后不退(标书费收取在投标时进行)。

    2.投标保证金:统一收取投标保证金为 5000元,在送达投标文件时缴纳。收取方式为现金(自带信封,现场封装)。

六、接受投标文件时间及地点:

    1.接受投标文件时间:开标前半小时。

    2.接受投标文件地点:MK.COM行政楼4楼403室。

七、开标时间及地点:

    2017年7月3日15:00,MK.COM行政楼4楼403室公开开标。届时请参加投标的单位法定代表人或其授权委托人准时参加。

八、澄清与答疑:

1.招标文件的修改、补充和答疑文件将在招标人网站上以公告的形式发布,请投标人自行查看。

九、联系方式:

报名咨询张老师电话:0516—83996343

项目咨询刘老师电话:13505210550 0516-83889015

监督电话:0516—83996085

  

  

附件1:投标人报名表.doc

附件2:共享型实训基地钢梯制作与安装招标文件.docx

附件3:钢梯 (施工图).jpg  

 

书记信箱:sjxx@jsviat.edu.cn

院长信箱:yzxx@jsviat.edu.cn

    【微信】

    【微博】

    【校报】

地址:江苏省徐州市泉山区学苑路26号

|

邮编:221116

|

招生电话:0516-83888688/83889021

|

版权所有:MK.COM

|

苏ICP备11021512号-1

|

苏公网安备32031102000182